Due to different materials used on different walls, it is highly recommended for you to consult with your local builder before you install this electric fireplace.
Before cutting any custom finishes (i.e. granite, marble, veneer, etc.) it is recommended to double check the dimensions of the actual fireplace.
NOTE: Use a dedicated 20 Amp (or higher), 2-pole (for 10,000 BTUs) circuit breaker.

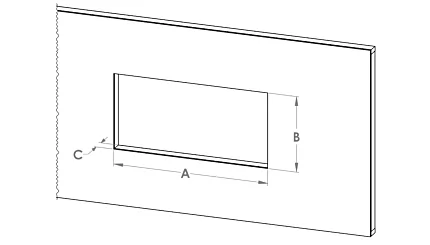
Finished Opening Framing Dimensions (For Partial Recess Installation)
| Model Number | A | B | CC |
| Motion 30 | 29-7/16” (748 mm) | 24-9/16” (624 mm) | 2-5/8” min. (67 mm min.) |
| Motion 52 | 50-15/16” (1294mm) | 24-9/16” (624mm) | 2-5/8” min. (67mm min.) |
| Motion 60 | 59-7/16” (1510mm) | 24-9/16” (624mm) | 2-5/8” min. (67mm min.) |
| Motion 76 | 75-3/16” (1910mm) | 24-9/16” (624mm) | 2-5/8” min. (67mm min.) |
| Motion 100 | 99-1/2” (2527mm) | 24-9/16” (624mm) | 2-5/8” min. (67mm min.) |
| Motion 120 | 123-13/16” (3145mm) | 24-9/16” (624mm) | 2-5/8” min. (67mm min.) |
- Prepare the finished opening according to the “Finished Opening Framing Dimensions” chart for partial recessed. Ensure an appropriate dedicated circuit is provided at the top right of the framed opening.
- Remove the front glass. See “Glass Removal/Installation”.
- Install the “L” Metal Nailing Flanges to both the top and bottom of the fireplace (Fig. 3-1). Quantities of “L” Metal Nailing Flanges will change depending on fireplace size ordered. Note that the location of the “L” bracket will change for partial installation.
- Hardwire the fireplace to the dedicated circuit (see “Hardwiring Installation”).
- Install the fireplace in the framed opening. Adjust the adjustable feet as needed to ensure the fireplace is level (Fig. 3-1).

Fig. 3-1
- Fasten the fireplace to the framing using the “L” Metal Nailing Flanges and drywall screws that have a minimum length of 1-1/4” (Fig. 3-3).

Fig. 3-2

Fig. 3-3
- Mask the exposed viewing area of the fireplace prior to texturing/finalizing the framed wall.
- Decorate according to media installation guide.
- Install the front glass. See “Glass Removal/Installation.
- Additional construction is required to finish off the fireplace.
